Vertriebsbüro 

                Henning Leiser               Deckensysteme und Streckmetall

Produktauswahl

Downloads

 

Impressum

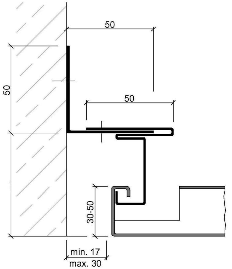
Flurdecke: Einhängesystem MELEI-EF107

Deckensysteme

Metalldecken

Standardkassetten

Raum-Klemmsystem

Raum-Z-Einhängesystem

H-Einhängesystem

Bandrasterdecken

Flurdecken

- Auflage AF100-WA

- Auflage AF100-GK

- Auflage AF101 

- Einhänge EF105W

- Einhänge EF105G

- Einhänge EF106

- Einhänge EF107

- Klemm KF180

- Gewölbe-Design

- Schwung-Design

Deckensegel

Baffeldecken

Kühldecken

Wandanschlüsse

Brandschutzdecken

Perforationsbilder / Lochbilder

LAGERARTIKEL

PDF-Formulare

- Produktinformation

- Preisanfrage

E-Mail - Kontakt

Downloads für Flurdecken:

 - Flurdecke komplett (PDF 4,2 MB)

 - Ausschreibung Flurdecke EF107

 - weitere Downloadmöglichkeiten

Technische Daten zum Flur-Einhängesystem EF107

- geschlossene Schattenfuge

- Übergang zu GK-Fries möglich

- Element auf Ausbauraster abstimmbar

- leichte Zugänglichkeit in den Deckenhohlraum

- werkseitige Ausschnitte für Einbauten wie

  Leuchten, Downlights, Lautsprecher ... möglich

- Unterkonstruktion vorab und schnell verfügbar

- aus Stahl- und Aluminium herstellbar

- verschiedene Perforationen möglich

- pulverbeschichtet bei allen Materialien möglich  

Anschrift / Kontakt:

Vertriebsbüro Henning Leiser

Welckerstrasse 6 --- D-35305 Grünberg (Deutschland/Germany)

Tel: +49 (0) 6401-22388-0 --- Fax: +49 (0) 6401-22388-20